NEWSLETTER ABONNEMENT
RÉSEAUX SOCIAUX
ÊTRE PROGRAMMÉ AU TPN
TÉLÉCHARGER LE PROGRAMME
ADHÉSIONS 25-26
LES RESIDENCES
Compagnie Accueillies en résidence – Saison 2025 | 2026
APPEL À RÉSIDENCE 2026|2027
LES SPECTACLES
SPECTACLES Saison 25-26
APEROS-LECTURES
SUPERNOVA #10
STAGES ET ATELIERS
LES GROUPES DE CRÉATION et ATELIERS Saison 2025|2026
GROUPE DE PRATIQUE THÉÂTRALE | LUNDI MATIN
STAGES Théâtre | Écriture
TARIFS & RÉSERVATIONS
ÉQUIPE/CONTACT
LE LIEU
COMPAGNIE RÉFÉRENTE & ASSOCIÉE
LE PROJET
HORS LES MURS
ESPACE PROS – TECHNIQUE
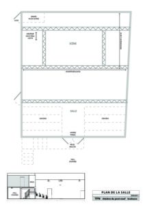
TPN | Plan-de-salle-TPN
19766
attachment,attachment-template-default,attachmentid-19766,attachment-pdf,bridge-core-1.0.4,ajax_fade,page_not_loaded,,vertical_menu_enabled,side_area_uncovered_from_content,qode-theme-ver-18.0.7,qode-theme-bridge,qode_header_in_grid,wpb-js-composer js-comp-ver-5.7,vc_responsive
Plan-de-salle-TPN